Loading...

- PARIS 18 - RUE CONSTANCE

419 000 €Honoraires à la charge du vendeur
PARIS 18ème
2 pièce(s)
1 chambre(s)
32m²
- Description du bien
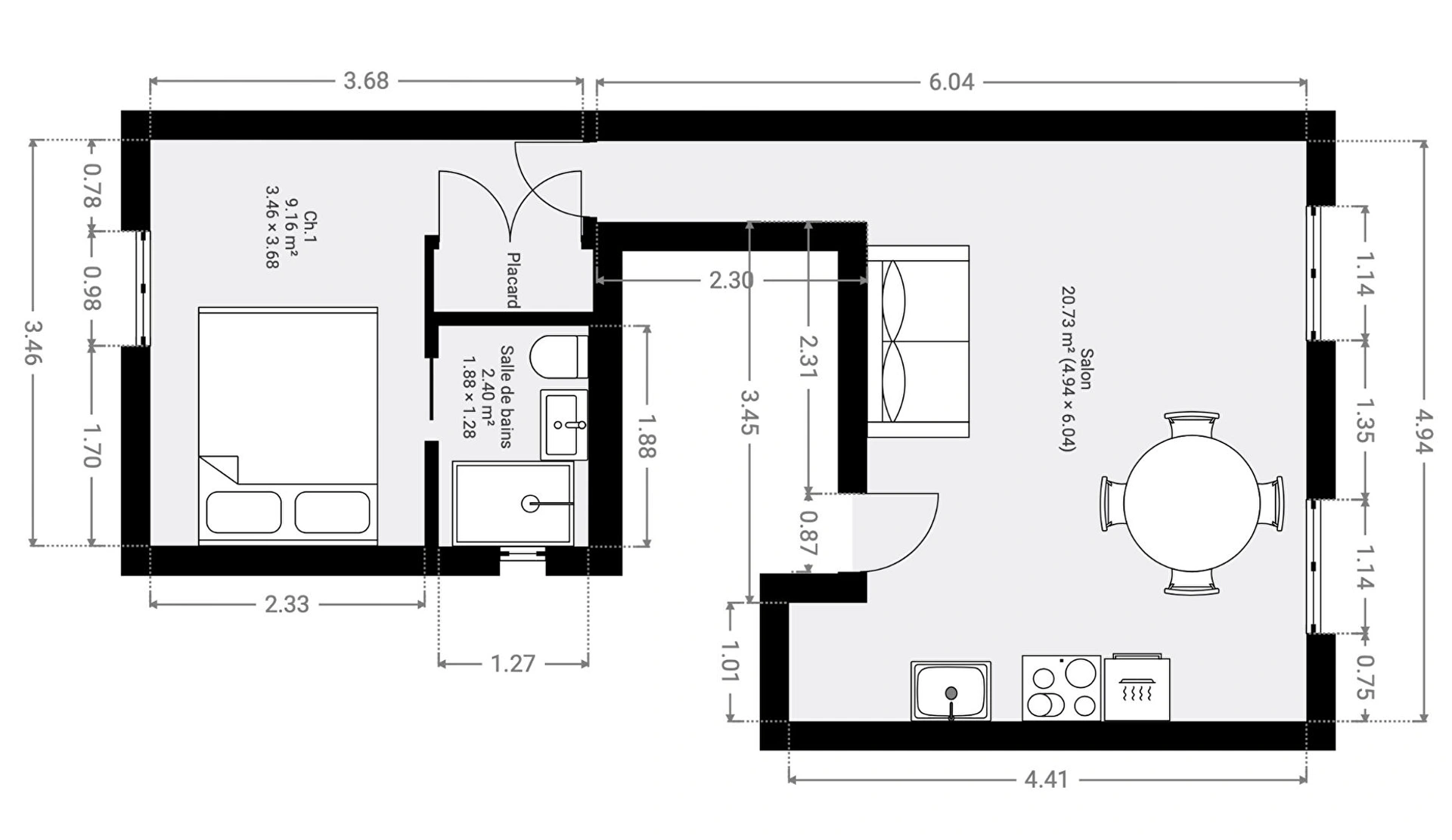
Votre Agence Fredélion immobilier Montmartre vous propose en exclusivité un charmant appartement de deux pièces et 32,09m2 situé rue Constance.
Au deuxième étage d'un immeuble de 1850 venez découvrir ce bien qui se compose comme suit : entrée, belle pièce à vivre de 18m² avec cuisine ouverte équipée et aménagée, une chambre et une salle de douches avec toilettes.
Vous serez séduits par le calme et l'ensoleillement de ce charmant appartement exposé Sud-Ouest et situé au coeur des Abbesses, un des quartiers les plus prisés de Paris.
Une cave complète ce bien.
Prix de vente : 419 000 euros FAI
Copropriété de 26 lots - dont 13 lots habitation. (Pas de procédure en cours).

Charges annuelles : 1724 euros.
Ce bien fait parti d'une co-propriété de 26 lots. Les charges sont de 1724€ par an. Pas de procédure en cours.
DPE_ logement extrêmement performant logement extrêmement peu performant consommation (énergie primaire) 291 kWh/m²/an émissions* 14 kgCO2/m²/an
DPE_ * Dont émissions de gaz à effet de serre peu d'émissions de CO2 émissions de CO2 très importantes 14 kgCO2/m²/an
- FREDéLION, c'est...
Chiffre
15
années
d'expertises
Chiffre
3313
avis clients
(MeilleursAgents, Google my business et Opinion System)
Chiffre
106
collaborateurs
à votre service
Votre agence
67 rue Caulaincourt, 75018 PARIS
01 53 09 26 27
Contactez-nous
Pour ce bien
*champs requis
Loading...
Les informations recueillies sur ce formulaire sont enregistrées dans un fichier informatisé par Fredélion Paris 18 Montmartre pour gérer votre demande de contact. Elles sont conservées pour la durée nécessaire à la gestion de la relation client dans le respect des prescriptions légales applicables et sont destinées au responsable de la publication de ce site : Fredélion Paris 18 Montmartre.
Conformément à la loi « informatique et libertés », vous pouvez exercer votre droit d'accès aux données vous concernant et les faire rectifier en contactant Fredélion Paris 18 Montmartre montmartre@fredelion.com ou en utilisant ce formulaire. Nous vous informons de l’existence de la liste d'opposition au démarchage téléphonique « Bloctel », sur laquelle vous pouvez vous inscrire ici : https://www.bloctel.gouv.fr/
FREDELION PARIS 18 MONTMARTRE - ALEPH TRANSACTIONS SAS, société au capital de 33300.00 euros. Siège social : 28 bd Malesherbes 75008 PARIS. N° de TVA intracommunautaire : FR52882080054. RCS PARIS immatriculé(e) 882080054.
Carte T : CPI75012021000000432. Date de délivrance : 0210-11-01T15:56:37.000000Z. Lieu de délivrance : Paris - IDF. Caisse de garantie financière : CEGC. N° de caisse de garantie : 29948TRA201. Adresse de la caisse de garantie : 59 AVENUE Pierre Mendès France 75013 PARIS. Montant de la garantie financière : 839900 euros.
Conformément aux articles L611-1 et suivants et R612-1 et suivants du Code de la consommation, le consommateur est informé qu’il a la possibilité de saisir un ou notre médiateur de la consommation, à savoir situé
Barème d'honoraires