Loading...

- PARIS 18 - RUE DUHESME

239 000 €dont 5,75% TTC à la charge de l'acquéreur226 000 € hors honoraires
PARIS 18ème
1 pièce(s)
23m²
- Description du bien
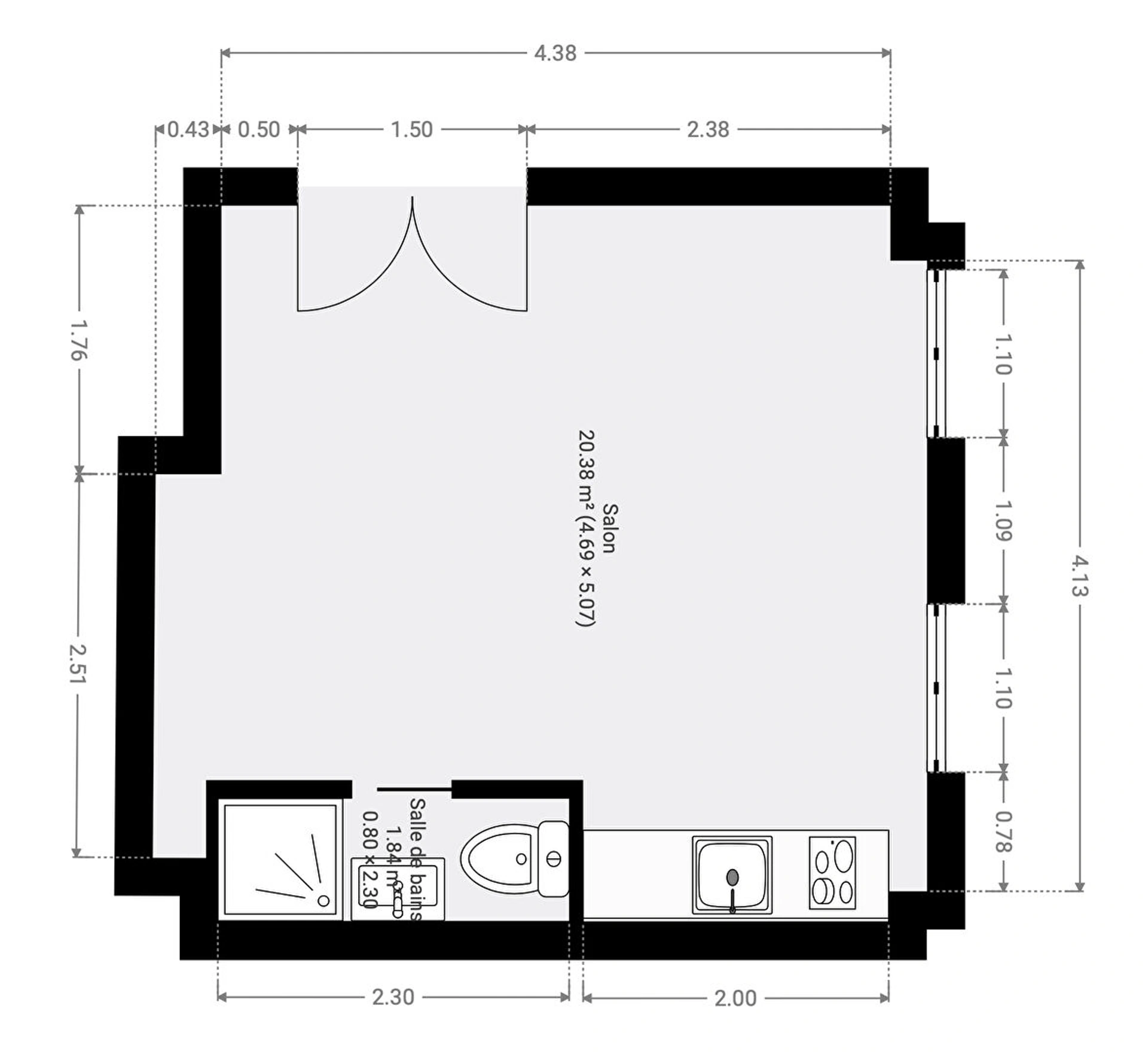
Rue Duhesme, l'agence Fredélion immobilier vous propose en exclusivité ce charmant studio de 23m2 en parfait état a deux pas du métro Lamarck-Caulaincourt.
Au rez-de-chaussée d'une belle copropriété ancienne il se compose d'une grande pièce de vie avec deux fenêtres et 2,90m de hauteur sous plafond, un grand coin cuisine équipé et aménagé et une salle d'eau avec wc.
Clair et calme ce bien est idéal pour un pieds à terre ou un investissement locatif.
Une grande cave complète l'appartement.
Prix de vente : 239 000 euros FAI (5.75 % honoraires TTC à la charge de l'acquéreur.)
Copropriété de 16 lots - dont 16 lots habitation. (Pas de procédure en cours).

Charges annuelles : 759 euros.
Ce bien fait parti d'une co-propriété de 16 lots. Les charges sont de 759€ par an. Pas de procédure en cours.
DPE_ passoire énergétique logement extrêmement performant logement extrêmement peu performant consommation (énergie primaire) 368 kWh/m²/an émissions* 14 kgCO2/m²/an
DPE_ * Dont émissions de gaz à effet de serre peu d'émissions de CO2 émissions de CO2 très importantes 14 kgCO2/m²/an
- FREDéLION, c'est...
Chiffre
15
années
d'expertises
Chiffre
3313
avis clients
(MeilleursAgents, Google my business et Opinion System)
Chiffre
106
collaborateurs
à votre service
Votre agence
67 rue Caulaincourt, 75018 PARIS
01 53 09 26 27
Contactez-nous
Pour ce bien
*champs requis
Loading...
Les informations recueillies sur ce formulaire sont enregistrées dans un fichier informatisé par Fredélion Paris 18 Montmartre pour gérer votre demande de contact. Elles sont conservées pour la durée nécessaire à la gestion de la relation client dans le respect des prescriptions légales applicables et sont destinées au responsable de la publication de ce site : Fredélion Paris 18 Montmartre.
Conformément à la loi « informatique et libertés », vous pouvez exercer votre droit d'accès aux données vous concernant et les faire rectifier en contactant Fredélion Paris 18 Montmartre montmartre@fredelion.com ou en utilisant ce formulaire. Nous vous informons de l’existence de la liste d'opposition au démarchage téléphonique « Bloctel », sur laquelle vous pouvez vous inscrire ici : https://www.bloctel.gouv.fr/
FREDELION PARIS 18 MONTMARTRE - ALEPH TRANSACTIONS SAS, société au capital de 33300.00 euros. Siège social : 28 bd Malesherbes 75008 PARIS. N° de TVA intracommunautaire : FR52882080054. RCS PARIS immatriculé(e) 882080054.
Carte T : CPI75012021000000432. Date de délivrance : 0210-11-01T17:07:11.000000Z. Lieu de délivrance : Paris - IDF. Caisse de garantie financière : CEGC. N° de caisse de garantie : 29948TRA201. Adresse de la caisse de garantie : 59 AVENUE Pierre Mendès France 75013 PARIS. Montant de la garantie financière : 839900 euros.
Conformément aux articles L611-1 et suivants et R612-1 et suivants du Code de la consommation, le consommateur est informé qu’il a la possibilité de saisir un ou notre médiateur de la consommation, à savoir situé
Barème d'honoraires