Loading...

- PARIS 18 - RUE D'ORCHAMPT

429 000 €Honoraires à la charge du vendeur
PARIS 18ème
2 pièce(s)
1 chambre(s)
34m²
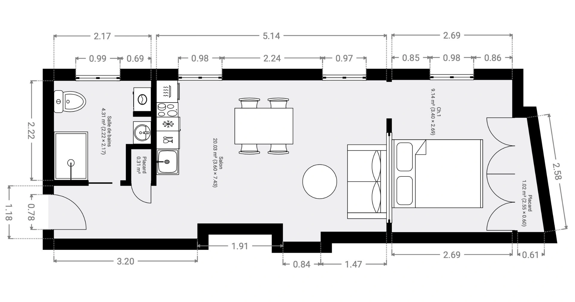
- Description du bien
Exclusivité agence Fredélion immobilier Montmartre.
Au cinquième et dernier étage d'un immeuble fin XIXème venez découvrir ce charmant deux pièces de 34m² qui se compose comme suit: entrée, grand séjour avec cuisine ouverte, une chambre et une salle de douches avec WC.
Le calme, la luminosité et le confort de cet appartement situé au coeur des Abbesses vous conquerra sans nul doute.
Une cave complète ce bien.
Prix de vente : 429 000 euros FAI.
Copropriété de 24 lots (Pas de procédure en cours).

Charges annuelles : 1191 euros.
Ce bien fait parti d'une co-propriété de 24 lots. Les charges sont de 1191€ par an. Pas de procédure en cours.
DPE_ logement extrêmement performant logement extrêmement peu performant consommation (énergie primaire) 595 kWh/m²/an émissions* 19 kgCO2/m²/an
DPE_ * Dont émissions de gaz à effet de serre peu d'émissions de CO2 émissions de CO2 très importantes 19 kgCO2/m²/an
- FREDéLION, c'est...
Chiffre
15
années
d'expertises
Chiffre
3313
avis clients
(MeilleursAgents, Google my business et Opinion System)
Chiffre
106
collaborateurs
à votre service
Votre agence
67 rue Caulaincourt, 75018 PARIS
01 53 09 26 27
Contactez-nous
Pour ce bien
*champs requis
Loading...
Les informations recueillies sur ce formulaire sont enregistrées dans un fichier informatisé par Fredélion Paris 18 Montmartre pour gérer votre demande de contact. Elles sont conservées pour la durée nécessaire à la gestion de la relation client dans le respect des prescriptions légales applicables et sont destinées au responsable de la publication de ce site : Fredélion Paris 18 Montmartre.
Conformément à la loi « informatique et libertés », vous pouvez exercer votre droit d'accès aux données vous concernant et les faire rectifier en contactant Fredélion Paris 18 Montmartre montmartre@fredelion.com ou en utilisant ce formulaire. Nous vous informons de l’existence de la liste d'opposition au démarchage téléphonique « Bloctel », sur laquelle vous pouvez vous inscrire ici : https://www.bloctel.gouv.fr/
FREDELION PARIS 18 MONTMARTRE - ALEPH TRANSACTIONS SAS, société au capital de 33300.00 euros. Siège social : 28 bd Malesherbes 75008 PARIS. N° de TVA intracommunautaire : FR52882080054. RCS PARIS immatriculé(e) 882080054.
Carte T : CPI75012021000000432. Date de délivrance : 0210-11-01T15:56:37.000000Z. Lieu de délivrance : Paris - IDF. Caisse de garantie financière : CEGC. N° de caisse de garantie : 29948TRA201. Adresse de la caisse de garantie : 59 AVENUE Pierre Mendès France 75013 PARIS. Montant de la garantie financière : 839900 euros.
Conformément aux articles L611-1 et suivants et R612-1 et suivants du Code de la consommation, le consommateur est informé qu’il a la possibilité de saisir un ou notre médiateur de la consommation, à savoir situé
Barème d'honoraires